Solides Mehrfamilienhaus – langfristige Kapitalanlage, gute Gründe für diese lohnenswerte Investition!
Objektdaten Kaufpreis : 585000 € Lage Altenburg verbindet historischen Charme…
585.000€ Kaufpreis
Gabelentzstraße 4, 04600 Altenburg , Thür (Thüringen)
Mieten
280€ Monatlich
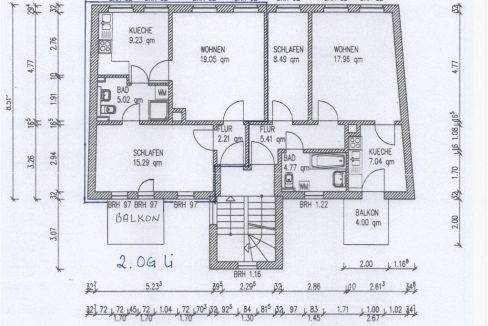
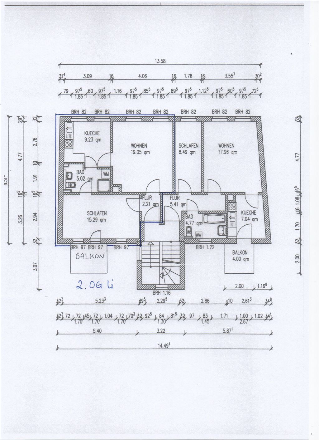
Sie suchen eine kleine, aber feine Wohnung mit besonderem Flair? Dann ist diese charmante Altbauwohnung genau das Richtige für Sie! Die Wohnung ist aufgrund ihrer geringen Größe und der zentralen Lage eine Rarität. Vereinbaren Sie jetzt einen Besichtigungstermin!
Durch die Nutzung dieser Website erklären Sie sich mit der Erhebung, Verarbeitung und Nutzung von Daten gemäß der nachfolgenden Beschreibung einverstanden. Diese Website kann grundsätzlich ohne Registrierung besucht werden. Dabei werden Daten wie beispielsweise aufgerufene Seiten bzw. Namen der abgerufenen Datei, Datum und Uhrzeit zu statistischen Zwecken auf dem Server gespeichert, ohne dass diese Daten unmittelbar auf Ihre Person bezogen werden. Personenbezogene Daten, insbesondere Name, Adresse oder E-Mail-Adresse werden soweit möglich auf freiwilliger Basis erhoben. Ohne Ihre Einwilligung erfolgt keine Weitergabe der Daten an Dritte. Gleichwohl kann das Vorhandensein von Fehlern nicht ausgeschlossen werden. Die Angaben in diesem Exposé erfolgen daher ohne jede Gewähr . Maßgeblich sind die im Mietvertrag geschlossenen Vereinbarungen. Soweit die Grundrissgrafiken, Maßangaben und Einrichtungen enthalten, wird auch für diese jegliche Haftung ausgeschlossen. Ebenso weisen wir darauf hin, dass die Grundrissgrafiken nicht immer maßstabsgetreu sind. Besichtigungen sind jederzeit, jedoch nur nach vorheriger Terminabsprache mit Ihrem Ansprechpartner möglich. Verhandlungen sind ausschließlich über Ihren Ansprechpartner zu führen. Preisänderungen bleiben vorbehalten. Es gelten die allgemeinen Geschäftsbedingungen! Datenschutzerklärung Durch die Nutzung dieser Website erklären Sie sich mit der Erhebung, Verarbeitung und Nutzung von Daten gemäß der nachfolgenden Beschreibung einverstanden. Diese Website kann grundsätzlich ohne Registrierung besucht werden. Dabei werden Daten wie beispielsweise aufgerufene Seiten bzw. Namen der abgerufenen Datei, Datum und Uhrzeit zu statistischen Zwecken auf dem Server gespeichert, ohne dass diese Daten unmittelbar auf Ihre Person bezogen werden. Personenbezogene Daten, insbesondere Name, Adresse oder E Mail- Adresse werden soweit möglich auf freiwilliger Basis erhoben. Ohne Ihre Einwilligung erfolgt keine Weitergabe der Daten an Dritte. GWG Wir müssen Sie der Ordnung halber daraufhin weisen, dass nach dem Geldwäschegesetz (GwG) Immobilienmakler die Identität ihrer Kunden (Käufer und Verkäufer) feststellen müssen. Immobilienmakler im Sinne dieses Gesetzes ist jede Person, die gewerblich den Kauf oder Verkauf von Grundstücken oder grundstücksgleichen Rechten vermittelt. Als Verkaufsmakler sind Immobilienmakler daher verpflichtet, sich die Personalausweise beider Parteien des Kaufvertrags, also vom Käufer und vom Verkäufer , zeigen zu lassen und vollständige Kopien der Dokumente anzufertigen oder sie vollständig optisch digital zu erfassen. Das Abschreiben oder die reine Erfassung im Rahmen eines Dokumentationsbogens genügen alleine nicht. (Wird der neue Personalausweis kopiert, sind die sechsstellige Nummer und die Unterschrift (Vorderseite) sowie die Augenfarbe und Körpergröße (Rückseite) grundsätzlich zu schwärzen.) Außerdem muss der Immobilienmakler prüfen, ob seine Kunden im eigenen wirtschaftlichen Interesse oder für einen Dritten handeln. Ist letzteres der Fall, muss der wirtschaftlich Berechtigte ermittelt und identifiziert werden. Gemäß § 4 Abs. 6 GwG sind Sie als Kunde verpflichtet, dem Immobilienmakler die entsprechenden Auskünfte zu erteilen und Unterlagen oder Ausweis zur Erfassung vorzulegen.
Objektdaten Kaufpreis : 585000 € Lage Altenburg verbindet historischen Charme…
585.000€ Kaufpreis
Objektdaten Kaufpreis : 65000 € Hausgeld : 175 € Objektbeschreibung…
65.000€ Kaufpreis